Добро пожаловать: гость! Вход | Регистрация Текущее время: Вс апр 19, 2026 6:38 pm

Лампочка свечей накала

Генератор, стартер, реле, предохранители, проводка и прочая электрика

Модераторы: Viking, DrEvil

Лампочка свечей накала

Сообщение lexa » Пт июл 16, 2010 1:07 pm

Пока Доктор тут , задам вопросик. Не горит лампа свечей накала на приборке. Лампочку менял, реле менял. Проводка вроде норма , только цепь разорвана через кнопку. Еще выведена кнопка на стартер в обход реле стартера. То есть нажав ее стартер работает, но машина не заводится пока не повернеш ключ. Бзид конечно , но хочу чтоб все работало. Где искать причину. Приборку перещупал , все гуд.
Аватара пользователя
lexa
VIP
VIP
 
Сообщения: 4442
Зарегистрирован: Вс май 30, 2010 8:50 am
Автомобиль: большой
Клубная карта №: 0

Re: Лампочка свечей накала

Сообщение leo_run » Пт июл 16, 2010 4:59 pm

не знаю как у вас в 3 у нас сигнал на лампочку идет с датчика температуры , через реле накала , если у тебя так то сними провод с датчика ткни на массу загорится???
Аватара пользователя
leo_run
VIP
VIP
 
Сообщения: 3983
Зарегистрирован: Чт янв 01, 1970 3:00 am
Откуда: Ukrain,USA, Chech republic.
Автомобиль: 242GT
Клубная карта №: 10

Re: Лампочка свечей накала

Сообщение lexa » Сб июл 17, 2010 7:41 am

Пнял. Ткну. Напишу.
Аватара пользователя
lexa
VIP
VIP
 
Сообщения: 4442
Зарегистрирован: Вс май 30, 2010 8:50 am
Автомобиль: большой
Клубная карта №: 0

Re: Лампочка свечей накала

Сообщение leo_run » Сб июл 17, 2010 8:51 am

или наоборот ты ее снимешь уже чтото произойдет смотря какой датчик...
но я знаю только как на D24 а как у вас???? без понятия... может итак же...
Аватара пользователя
leo_run
VIP
VIP
 
Сообщения: 3983
Зарегистрирован: Чт янв 01, 1970 3:00 am
Откуда: Ukrain,USA, Chech republic.
Автомобиль: 242GT
Клубная карта №: 10

Re: Лампочка свечей накала

Сообщение lexa » Сб июл 17, 2010 9:00 am

Пока теория, мафын на подъемнике высоко. То есть ,если снять лампочку(с приборки) то произойдет чудо? Снимал , чуда нет.
Есть мысль , что сигнал должен приходить от датчика давления масла.
Аватара пользователя
lexa
VIP
VIP
 
Сообщения: 4442
Зарегистрирован: Вс май 30, 2010 8:50 am
Автомобиль: большой
Клубная карта №: 0

Re: Лампочка свечей накала

Сообщение leo_run » Сб июл 17, 2010 9:13 am

вот про снять лампочку с приборки ???? я вообще не понял.... у тебя есть схема ????
Аватара пользователя
leo_run
VIP
VIP
 
Сообщения: 3983
Зарегистрирован: Чт янв 01, 1970 3:00 am
Откуда: Ukrain,USA, Chech republic.
Автомобиль: 242GT
Клубная карта №: 10

Re: Лампочка свечей накала

Сообщение lexa » Сб июл 17, 2010 9:34 am

Схема есть , но ее прочесть башка луснет.
Аватара пользователя
lexa
VIP
VIP
 
Сообщения: 4442
Зарегистрирован: Вс май 30, 2010 8:50 am
Автомобиль: большой
Клубная карта №: 0

Re: Лампочка свечей накала

Сообщение leo_run » Сб июл 17, 2010 9:45 am

пришли

ровно три года назад.. я такоеже писал Злому доктору когда купил свою:-)
Аватара пользователя
leo_run
VIP
VIP
 
Сообщения: 3983
Зарегистрирован: Чт янв 01, 1970 3:00 am
Откуда: Ukrain,USA, Chech republic.
Автомобиль: 242GT
Клубная карта №: 10

Re: Лампочка свечей накала

Сообщение lexa » Пн июл 19, 2010 2:20 pm

Дохтур отзовись....DrEvil
Аватара пользователя
lexa
VIP
VIP
 
Сообщения: 4442
Зарегистрирован: Вс май 30, 2010 8:50 am
Автомобиль: большой
Клубная карта №: 0

Re: Лампочка свечей накала

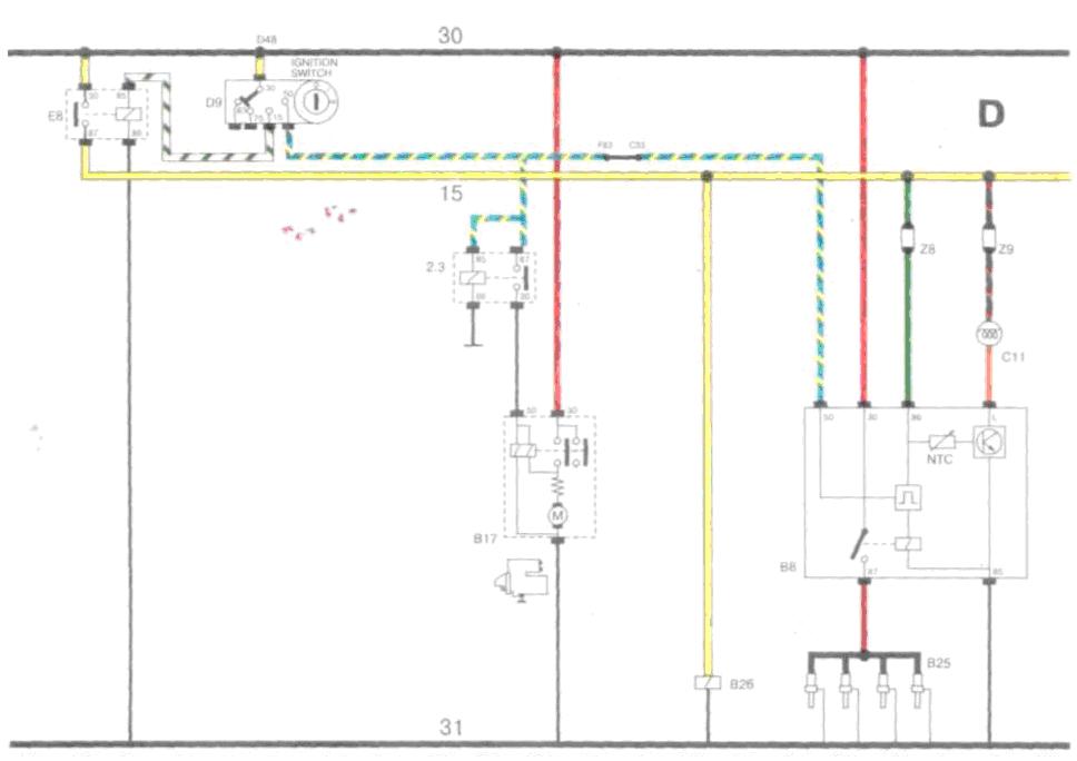
Сообщение Stas340 » Пн июл 19, 2010 3:40 pm

Без реле лампа гореть не будет, питание (+) на нее подходит постоянно, прерывается масса идущая к лампе в самом реле.
На схеме С11 - контрольная лампа, В26 клапан перекрывания доступа топлива. Получается если у тебя клапан перекрывания доступа топлива благополучно работает то питание на лампу должно идти (ну или обрыв) посмотри предохранитель 9, или шлейф на панели приборов, могла медная дорожка оторваться загнуться и т.д. Вобщем если приедешь ко мне обещаю найти))) :drag:
Вложения
схема.JPG
Последний раз редактировалось Stas340 Пн июл 19, 2010 3:53 pm, всего редактировалось 1 раз.
Поменяю седан 244 на сарайку 245
Аватара пользователя
Stas340
VIP
VIP
 
Сообщения: 4868
Зарегистрирован: Ср мар 25, 2009 9:51 am
Откуда: г. Артемовск Донецкой обл. - г.Барвенково Харьковской обл.
Автомобиль: 244
Клубная карта №: 0

Re: Лампочка свечей накала

Сообщение leo_run » Пн июл 19, 2010 3:49 pm

я так и не понял в чем сложность схемы????

есть вопросы давай растолкую
Аватара пользователя
leo_run
VIP
VIP
 
Сообщения: 3983
Зарегистрирован: Чт янв 01, 1970 3:00 am
Откуда: Ukrain,USA, Chech republic.
Автомобиль: 242GT
Клубная карта №: 10

Re: Лампочка свечей накала

Сообщение lexa » Вт июл 20, 2010 2:15 pm

Занят........... К выходным буду делать.
Аватара пользователя
lexa
VIP
VIP
 
Сообщения: 4442
Зарегистрирован: Вс май 30, 2010 8:50 am
Автомобиль: большой
Клубная карта №: 0

Re: Лампочка свечей накала

Сообщение lexa » Пт сен 03, 2010 1:26 pm

Замена реле накала решила проблему. Два реле б\у выкинул .Купил новое Феби.
Аватара пользователя
lexa
VIP
VIP
 
Сообщения: 4442
Зарегистрирован: Вс май 30, 2010 8:50 am
Автомобиль: большой
Клубная карта №: 0

Re: Лампочка свечей накала

Сообщение Stas340 » Пт сен 03, 2010 1:28 pm

Скока?
Поменяю седан 244 на сарайку 245
Аватара пользователя
Stas340
VIP
VIP
 
Сообщения: 4868
Зарегистрирован: Ср мар 25, 2009 9:51 am
Откуда: г. Артемовск Донецкой обл. - г.Барвенково Харьковской обл.
Автомобиль: 244
Клубная карта №: 0

Re: Лампочка свечей накала

Сообщение lexa » Пн сен 06, 2010 8:04 am

Stas340 писал(а):Скока?

330 грн.
Аватара пользователя
lexa
VIP
VIP
 
Сообщения: 4442
Зарегистрирован: Вс май 30, 2010 8:50 am
Автомобиль: большой
Клубная карта №: 0


Вернуться в Электрическая часть

Кто сейчас на конференции

Сейчас этот форум просматривают: нет зарегистрированных пользователей и гости: 1